GO Bond Project History/Archives

NOTE: The information contained on this page is for ARCHIVE PURPOSES ONLY. 

Visit the current project web pages for the most up-to-date information and renderings of the projects listed below.


Parks GO Bond Project History/Archives 


Click on any of the links below to jump to a specific project, or scroll down to view the history of all Parks GO Bond projects.
Parks GO Bond projects
Crystal Lake Park - Project History

February 2024 Update


City Council agreed to Resolution 46-24 on February 7, 2024, approving a contract with Pavement Maintenance LLC to construct Crystal Lake Park in NW Cape Coral. Park amenities include a multi-use path, beach, scuba diving area, hill overlook, boat ramp, and kayak launch to Flagstone Canal, which connects to the North Spreader Waterway. The Groundbreaking Ceremony was held on February 23, 2024.

Crystal Lake Park - 2.28.24

October 2023 Update


Crystal Lake Park

FINAL Site Plan  (Rev. July 2022)


Crystal Lake Park Site Plan Final

Updated Site Plan  


Crystal Lake

Original Concept Plan  


Crystal Lake - Concept Plans

Crystal Lake - Bird's Eye View
Cultural Park - Project History

February 2024 Update

Cultural Park - 2.28.24

October 2023 Update

Cultural Park - 10.25.23_Page_1

Cultural Park - 10.25.23_Page_2

Groundbreaking - 10/15/21


Cultural Park Ground Breaking  Council and Cultural Park Staff - Copy

Aerial - Before construction 


Cultural Park 1

Aerial - January 2022

Cultural Park - Jan '22 (5) - Copy (2)

FINAL Site Plan (July 2022)


Cultural Park Final

Updated Site Plan 


Cultural Park

Final Playground Layout/Theme


Cultural Park Playground - 2

Cultural Park Playground - 1

Cultural Park - Character Image
Festival Park - Project History

Aug 2025 Update
festival park august 2025



May 2024 Update


Festival Park - 5.22.24

February 2024 Update


On February 21, 2024, the City Council approved Resolution 59-24, awarding the construction bid for Festival Park to Burke Construction Group. This park's development intends to provide festival grounds for large events and an outdoor concert venue. Proposed park improvements include four multi-use sports fields with lighting and an amphitheater with a grass berm.

Festival Park- 2.28.24

October 2023 Update


Festival Park

Original Concept Plan


FP1

FP2

FP3

FP4

FP7

f1

f2

f3


f4

f5

Parks
Gator Trails Park - Project History

October 2023 Update


Gator Trails Park - 10.25.23_Page_1

Gator Trails Park - 10.25.23_Page_2

FINAL Site Plan (July 2022)


Gator Circle Park Final

Updated Site Plan

Gator Circle

Final Playground Layout/Theme

Gator Circle Park_Page_3   Gator Circle Park_Page_4

Gator Circle Park_Page_2   Gator Circle Park_Page_5

Joe Coviello Park - Project History

February 2024 Update


Joe Coviello Park - 2.28.24

October 2023 Update

Joe Coviello Park

FINAL Site Plan (Rev. July 2022)

Oasis Woods Park Final

Updated Site Plan

Joe Coviello copy

Original Concept Plan


Joe Coviello Park - Concept Plans

Oasis Wood - Birds Eye View

Oasis Woods Park - Character image
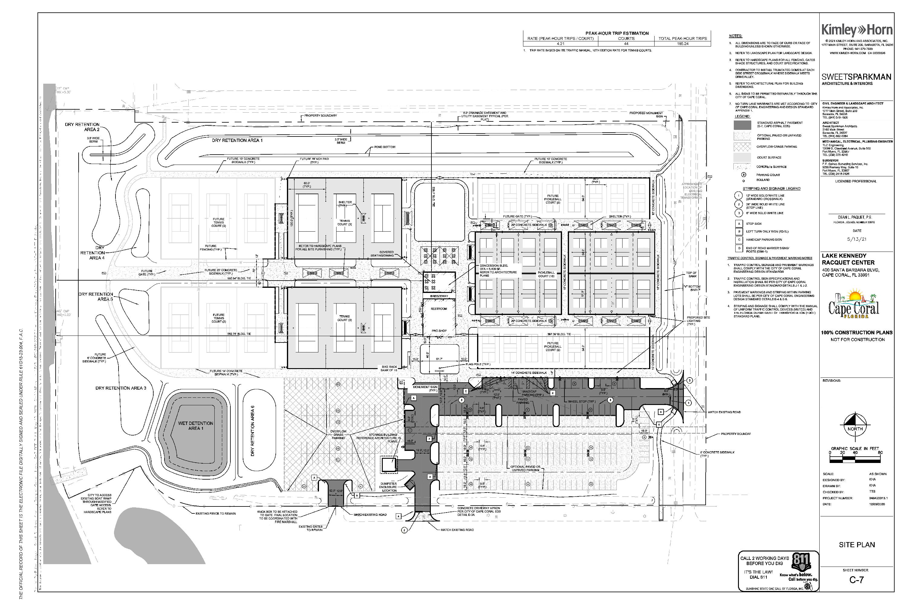
Lake Kennedy Racquet Center - Project History
Lake Kennedy Racquet Center opened on August 28, 2024. Click here for facility details.

May 2024 Update


Lake Kennedy Racquet Center - 5.22.24

FINAL Site Plan

Lake Kennedy Racquet Center Site Plan - Final_Page_1

Lake Kennedy Racquet Center Site Plan - Final_Page_2

View previous project updates on the Parks GO Bond Project History/Archive Page.

February 2024 Update

LK Racquet Club- 2.28.24

October 2023 Update

Lake Kennedy Racquet Center

LK Racquet Center - 8.23.23_Page_1

View the presentation from the 8.23.23 COW Meeting

July 2023 Update


Lake Kennedy Racquet Center - 7.19.23

City Council approved the recommended bid package and corresponding contract for Charles Perry Partners, Inc. to construct Phases 1 and 2 of this project. 

View Bid Recommendation Summary

Original Concept Plan


lk 4

lk 5

lk 6

lk 7
Lake Meade Park - Project History

Aug 2025 Update
lake meade park august 2025



February 2024 Update


Lake Meade Park - 2.28.24

October 2023 Update

Lake Meade Park

FINAL Site Plan (Rev. July 2022)


Lake Meade Park Final

Updated Site Plan 


Lake Meade

Original Concept Plan


Lake Meade - Concept Plans

Lake Meade - birds eye view
Lake Meade Park - character image
Sands Park - Project History

February 2024 Update


Sands Park - 2.28.24

October 2023 Update


Sands Park


FINAL Site Plan (July 2022)

Sands Park Final

Updated Site Plan


Sands

Final Playground Layout/Theme

Sands Park Playground_Page_3

Sands Park Playground_Page_1

Sands Park Playground_Page_2

Sands Park - Character Image

Tropicana Park - Project History

Aug 2025 Update


tropicana park august 2025
 

May 2024 Update

Tropicana Park - 5.22.24

February 2024 Update


Tropicana Park - 2.28.24

October 2023 Update


Tropicana Park


FINAL Site Plan (Rev. July 2022)


Tropicana Park Site Plan Final

Updated Site Plan 

Tropicana

Concept Plan Approved by Council on 6-01-2020


Annotation - Copy

For more information on the revised Tropicana Park concept plans, please visit  this presentation link.

Original Concept Plan


*The use of space and storage areas by the Rowing Club and South Florida Canoe Kayak Club that are illustrated on the revised concept plan are contingent upon an agreement between the City and these non-profit clubs

Tropicana Park - Concept Plans

Tropicana Park - Birds Eye View
Yellow Fever Creek Preserve - Project History

Aug 2025 Update
Yellow Fever Creek - 5.22.24



February 2024 Update


YFC - 2.28. 24 - pg 1

YFC - 2.28.24 - pg 2

YFC - 2.28.24 - pg 3

October 2023 Update


Yellow Fever Creek

Renderings of Completed Park

set1 - Copy    set2_13 - Photo - Copy   set2 - Copy


FINAL Site Plan (July 2022)


YFCP Site Plan - Final - Copy


Original Plans


YF4

y1

y2

y3

y4

y5

YF7

Parks

REMINDER: The information contained on this page is for ARCHIVE PURPOSES ONLY. 

Please visit the project web pages for the most current information and renderings of the projects listed on this page.